价格亲民
低于市场同类产品售价
包含项目

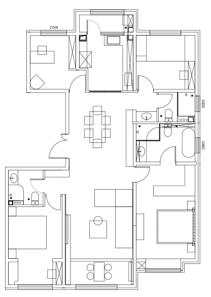
户型设计说明
该户型为多人居住紧凑型布局,若要将氛围和功能统筹考虑,需要采取一定的针对性布置:

一、天悦壹号小区外景优雅精致,室内布置风格以时尚现代极简风格为主,体现一定的生活品质,以此为方案总体思路。
二、房型总体较为规范,储物空间充足,定制柜体类多,更能体现设计水平。
三、本案房型设计为分体空调,满足全屋制冷需求。如有需要,可以改为中央空调,大金、格力一流品牌可任选。
四、客厅整面岩板背景墙艺术处理,提高品味与档次。
五、整体设计属于经济型全案,涵盖内容全面,同时可提供多种名品、名材进行项目替换,每项单独标价,便于对比推敲。
客户意向
一、全案设计、硬装施工、主材、羞羞视频观看免费类产品、全套实木羞羞视频成人APP下载、软装饰品、电器、灯光照明。
二、祖孙三代5人居住,孩子需要有学习空间、储物空间要多、大,生活便捷舒适,第一居所。
三、时尚,简约,有品质。
服务内容及工作界限
一、完成房屋内所有的硬装详细设计,软装详细设计、定制类产品制作图 设计以及各类硬装材料、电器、灯具、窗帘、画品、床品、餐具等家 居用品的免费选型和配置。
二、完成所有涉及到的施工和陈列。
三、项目进行无须甲方参与,但甲方需配合解决场地出入方面可能遇到的 问题,承担项目之外可能发生的费用(如物业押金等)。
四、其中定型产品乙方提供正规产品相关证书,做到保真保质。项目完成 后安排规范环境检测。
五、项目完成时间预计从具备入场条件起三个月左右。
六、本方案延用原有采暖,如改装地暖每平米造价约为 80 元。
客厅

餐厅

厨房

书房

主卧

次卧

衣帽间

卫生间

天悦壹号150㎡户型简约型实景效果展示
低于市场同类产品售价
特产原料,专项采购,呈现好的产品
产品弹性库存,提供现货,无需等待
完整的全系列产品方便您整体配套
您的信息已提交成功!